Продава 3-СТАЕН – ЛОЗЕНЕЦ
- 530,138€
Описание
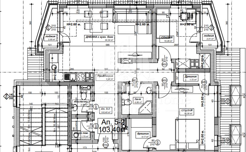
Представяме на Вашето внимание просторен и светъл тристаен апартамент в изключително модерна жилищна сграда. В нея има само тристайни и четиристайни апартаменти, което очертава една страхотна спокойна семейна среда! Имотът се намира в кв. Лозенец на страхотно място между Борисова градина и Южен парк. На минута пеша от спирка на трамвай 10, на 7-8 минути от метростанция Джеймс Баучер и в близост има магазини от големите вериги БИЛА, ДАР, МОЛ ПАРАДАЙС, банки и множество училища и детски градини. Гаражи и паркоместа на две нива с топла връзка. Асансьорът е до всички нива на сградата. Ограничен достъп само за собствениците! За ваше улеснение прилагаме схема на разпределение.
Сградата разполага с още подобни тристайни и четиристайни апартаменти – изборът Ви е голям!
Не се колебайте, обадете ни се и елате да видите сами!
Обадете се и цитирайте този код: 2149
Адрес
-
Град: София
-
Квартал: Лозенец
Детайли
Обновено на декември 19, 2025 в 9:18 am-
Оферта № 2149
-
Цена 530,138€
-
Квадратура 154
-
Спални 2
-
Стаи 3
-
Година на строителство 2025
-
Вид имот 3-стаен
-
Вид оферта Продава
-
Вид строителство Тухла
-
Цена кв.м. 3438
-
Балкони 2
-
Баня с тоалетна 1
-
Тоалетни 1
Контакти
преглед на всички офертиПодобни имоти
3-стаен – София, Зона Б18
- 335,000€
3-стаен – София, Люлин 4
- 205,140€
3-стаен – София, Кръстова Вада
- 258,000€



