Офис – София, Люлин 10
ТОП Оферта
Отдава под наем
- 480€
Описание
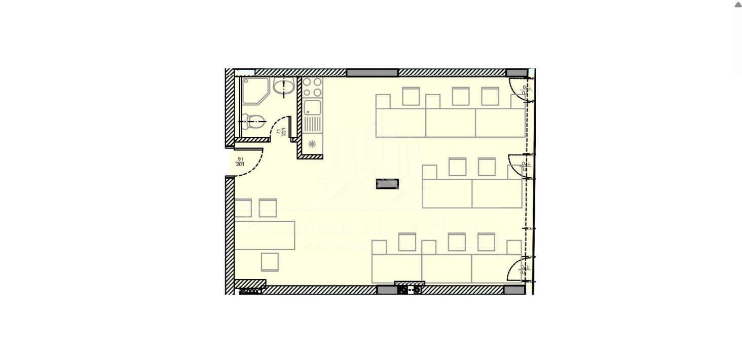
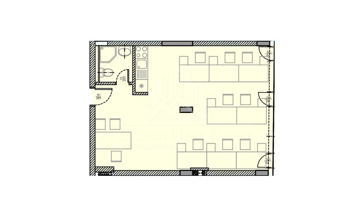
ДО МЕТРОСТАНЦИЯ ! ! ! НОВО СТРОИТЕЛСТВО ! ! ! АКТ 16 ! ! ! Предлагаме на вашето офис със следното функционално разпределение: офис помещение и баня с тоалетна. Чиста застроена площ на имота – 53 кв.м. Имотът се намира на изключително комуникативно място, на 10 метра от спирка на градски транспорт и на 8 мин. пешеходно разстояние до метростанция ‘ЗАПАДЕН ПАРК’, поликлиника, училище и детска градина. За ваше улеснение прилагаме схема на разпределение на имота. Обадете се сега и цитирайте този код: 2760
Адрес
-
Град: София
-
Квартал: Люлин 10
Детайли
Обновено на април 3, 2026 в 4:08 pm-
Оферта № 2760
-
Цена 480€
-
Квадратура 62
-
Спалня 0
-
Стая 0
-
Баня 0
-
Година на строителство 2021
-
Вид имот Офис
-
Вид оферта Отдава под наем
-
Обзавеждане Полуобзаведен
-
Вид строителство Тухла
-
Етаж 2
-
Етажи 10
-
Цена кв.м. 8
-
Отопление Електричество
Контакти
преглед на всички офертиПодобни имоти
Офис – София, Люлин 4
- 12,000€
Офис – София, Люлин 4
- 2,000,000€




