3-стаен – София, Дружба 1
- 284,990€
Описание
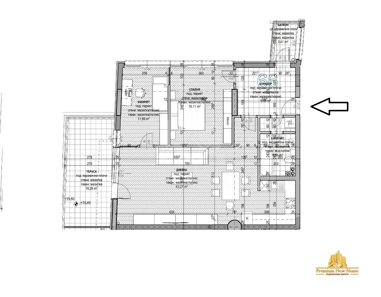
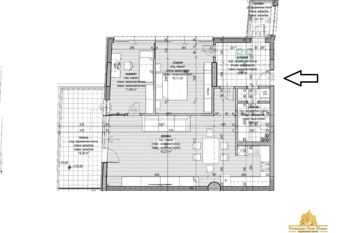
АКТ 16 ! ! ! ЮЖЕН ! ! ! ТУХЛА! ! ! СТАТУТ АПАРТАМЕНТ!!! Представяме на вашето внимание тристаен апартамент с изложение юг, със следното функционално разпределение: коридор, дневна с трапезария и кухненски бокс с излаз на тераса, две спални, баня, самостоятелна тоалетна и мокро помещение.Апартаментът предлага функционално разпределение. Има възможност и за покупка на подземно паркомясто на цена от 25 000 евро. Локацията предоставя изключително лесен достъп до градски транспорт, спирки на градски транспорт, училища и детски градини, индустриални зони и бизнес центрове. За Ваше улеснение прилагаме схема на разпределение на имота. Обадете се и цитирайте тоз код: 2443
Адрес
-
Град: София
-
Квартал: Дружба 1
Детайли
Обновено на декември 19, 2025 в 7:18 pm-
Оферта № 2443
-
Цена 284,990€
-
Квадратура 135
-
Спални 2
-
Стаи 3
-
Бани 2
-
Година на строителство 2025
-
Вид имот 3-стаен
-
Вид оферта Продава
-
Обзавеждане Необзаведен
-
Вид строителство Тухла
-
Етаж 6
-
Етажи 6
-
Цена кв.м. 2111
-
Отопление ТЕЦ
-
Ново строителство Да
-
Балкони 2
-
Баня с тоалетна 1
-
Тоалетни 1
Контакти
преглед на всички офертиПодобни имоти
3-стаен – София, Зона Б18
- 335,000€
3-стаен – София, Люлин 4
- 205,140€
3-стаен – София, Кръстова Вада
- 258,000€













